DESCRIPCIÓN
La Casa Aguaribay es una obra de arquitectura modular off-site destinada a una casa de fin de semana que emplazamos en Villa La Ribera (Provincia de Santa Fe). La misma fue construida en nuestra fábrica y una vez terminada, transportada e instalada en el terreno.
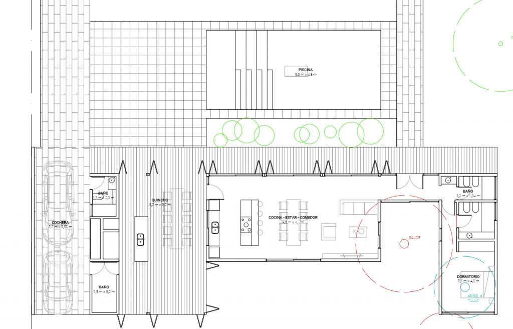
El proyecto contempla un amplio estar / comedor / cocina, 3 baños, dormitorio, quincho, depósito, garaje, piscina y solárium.
La superficie total del proyecto es de 93 m² cubiertos y 100 m² semicubiertos. La casa está dividida en 6 módulos y una parte ejecutada in situ.
En Lista apostamos a la industrialización de los procesos constructivos, que nos permitan realizar obras de alta calidad, en un espacio controlado, con mano de obra altamente calificada, cuidando todos los detalles y optimizando tiempo y recursos.

La Casa Aguaribay ha obtenido una Mención en el Premio Obra Construída 2023, otorgado por el Colegio de Arquitectura de la Provincia de Santa Fe.















































