DESCRIPCIÓN
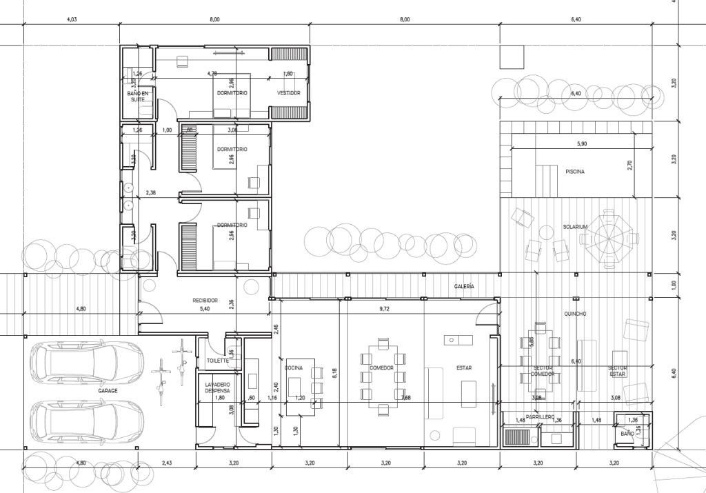
La casa Jacarandá es una vivienda modular que redefine la elegancia contemporánea en el entorno natural de Funes. Diseñada con una equilibrada planta en «L», esta casa logra la armonía perfecta entre la privacidad de sus ambientes y una apertura total hacia el paisaje.
El corazón de Jacarandá es su amplio área social integrada, donde el estar, el comedor y una moderna cocina con isla se funden en un espacio luminoso de casi 10 metros de largo. Grandes ventanales conectan este interior con una espectacular galería que alberga el quincho y el parrillero, ideal para disfrutar de encuentros inolvidables al aire libre.
Con tres dormitorios (incluyendo una suite con vestidor), piscina con solárium y un garaje doble semicubierto, Jacarandá no es solo una casa: es un refugio de diseño minimalista pensado para quienes buscan calidad constructiva y un estilo de vida sofisticado.

Imágenes















