ESPECIFICACIONES
- Especial para vivienda permanente, fin de semana, vacaciones.
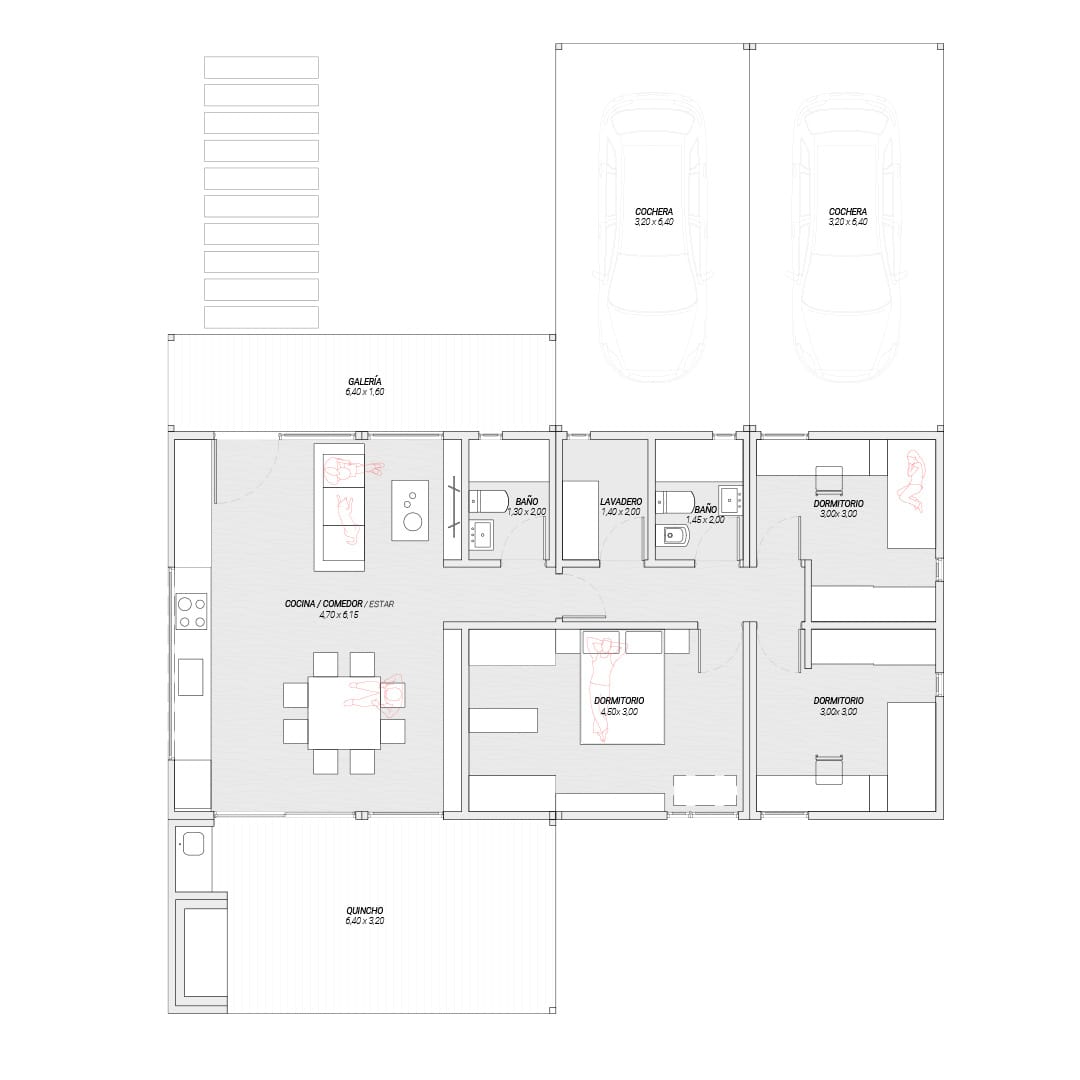
- Cuatro módulos 3,2 metros de largo por 6,4 de ancho (83 m2).
- Tres dormitorios. Dormitorio principal (cama matrimonial) con vestidor; secundarios con placard y escritorio (opcional).
- Amplio estar / comedor.
- Dos baños. Uno completo con ducha y bidet, el otro con ducha o bidet (a elección). Opción lavadero.
- Cocina completa con bajomesada, isla y alacena. Anafe 4 hornallas, horno embutido (incluídos). Espacio para heladera y microondas (no incluídos).
- Rack para TV.
- Aberturas con doble vidrio hermético laminado (Blindex).
- Galería, cochera y quincho opcionales.

PRECIOS
ESENCIAL
desde 101.707 USD
PREMIUM
desde 113.008 USD
DELUXE
desde 169.512 USD
kits semicubiertos
KIT INGRESO (deck + techo)
desde 3.675 USD
KIT COCHERA (1 auto)
desde 2.048 USD
KIT QUINCHO CON PARRILLERO
desde 15.746 USD
Imágenes
INFORMACIÓN GENERAL
- Todos los precios están expresados dólar estadounidense (o pesos a cotización DÓLAR OFICIAL BNA VENTA según lo publicado en https://www.bna.com.ar/)
- Todos los precios son + IVA, según condición fiscal del comprador (Consumidor Final 10,5%, Responsable Inscripto 21%).
- Adicionales y opcionales al modelo base se cotizarán aparte.
- LOS PRECIOS PUEDEN VARIAR SIN PREVIO AVISO.
- Estructura de acero.
- Aislación térmica envolvente de toda la casa (pared – piso – techo) en lana de vidrio.
- Terminación exterior según modelo (LP Smartpanel, chapa, EIFS).
- Pisos según la gama del modelo elegido.
- Aberturas según la gama del modelo elegido.
- Puertas interiores según la gama del modelo elegido.
- Sanitarios y griferías según gama del modelo elegido.
- Mesadas de granito natural o sintético según la gama del modelo elegido.
- Muebles de diseño a medida, según la gama del modelo elegido.
- Anafe y horno eléctricos, según gama del modelo elegido.
- Termotanque eléctrico, capacidad y tipo según gama del modelo elegido.
- Instalación eléctrica segura con disyuntor y descarga a tierra. Teclas y tomas.
- Instalaciones sanitarias.
- Espacio para instalación de aires acondicionados split (equipo no incluído).
- Artefactos de iluminación LED, según gama del modelo elegido.
Las viviendas modulares de Lista, vienen en diferentes gamas, diseñadas para responder a diversas necesidades y estilos de vida.
La gama Esencial ofrece una propuesta sólida y funcional, cumpliendo con los estándares básicos de calidad y diseño para aquellos que buscan eficiencia y practicidad. Por otro lado, la gama Premium se destaca por sus acabados mejorados, prestaciones superiores y detalles estéticos que elevan el confort y la experiencia habitacional. Finalmente, la gama Deluxe integra materiales de primera, tecnología avanzada y exclusividad en cada detalle, ofreciendo un nivel de personalización y sofisticación pensado para quienes aspiran a lo máximo en lujo y distinción.
CRÉDITOS DEL BANCO HIPOTECARIO PARA VIVIENDAS INDUSTRIALIZADAS
Gracias al nuevo convenio entre Lista y Banco Hipotecario, ahora podés acceder fácilmente a préstamos para adquirir tu vivienda modular Lista con excelentes condiciones y financiación flexible. Para conocer más detalles y recibir asesoramiento personalizado, visitá este enlace.
FINANCIAMIENTO CON BANCO SANTANDER
También tenemos un acuerdo con el Banco Santander para facilitar el acceso a la financiación de tu nueva vivienda modular. Este convenio te brinda la posibilidad de acceder a un crédito personal y al pago con tarjetas de crédito.
FORMA DE PAGO
Pagos en efectivo en dólares estadounidenses o transferencia bancaria en dólares o pesos a cotización MEP (intermedio tipo comprador / vendedor del día) según lo publicado en Ámbito.com:
- Reserva: 5%
- Pago del 45% al momento de la firma de contrato.
- Cuotas fijas hasta el momento del despacho.
Para unidades de entrega inmediata, las mismas deben estar abonadas en su totalidad al momento del despacho.
- El tiempo de fabricación estimado es entre 90 y 180 dependiendo el modelo.
- En el momento del pago del anticipo se fijará fecha de inicio de producción.
- Transporte. Especial para la obra. Se descarga a pie de flete mediante una grúa. (En el sitio deben estar previsto las fundaciones y servicios para la instalación del módulo.)
- El terreno en el que se va a instalar la vivienda.
- Trámites de permiso de edificación fuera de la Provincia de Santa Fe
- Preparación del terreno (pilotines, desagües, biodigestor, infiltración, conexión de servicios).
- Servicios logísticos (transporte y descarga en el terreno).
- Instalación en el terreno.
- Salamandra a leña o pellets.
- Domótica:
- Cerradura inteligente con control de acceso
- Control de acondicionamiento térmico y lumínico
- Automatización de cortinas
- Central de audio con parlantes embutidos en muros.
- Alarma y cámaras de seguridad.
- Equipo de aire acondicionado split o baja silueta.
- Sistema de paneles solares fotovoltaicos.
- Termotanque solar.
- Tanque de agua externo.
- Bomba presurizadora de agua.
Estas tareas o equipamiento adicional podrán ser cotizadas aparte.
- Nuestras casas están fabricadas íntegramente en nuestro taller, ubicado en la ciudad de Rosario, Santa Fe.
- Están construídas en steel framing (estructura de acero galvanizado).
- La estructura, aberturas, terminaciones, aislaciones y equipamiento varía según la gama elegida.












